BUREAUX OLYMPE DE GOUGE
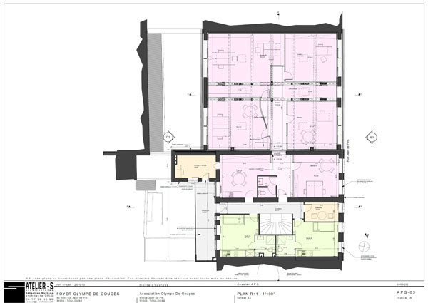
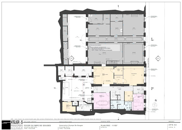
AUTRES Toulouse - Quartier Saint-Cyprien 2020 Maître d´ouvrage: Association Olympe de GougesSurélévation du restaurant "La Maison d´à Côté" situé dans le quartier Saint-Cyprien à Toulouse pour y installer les bureaux de l´assocation Olympe de Gouge relié au prémier étage du foyer d´hébergement occupant l´immeuble voisin.
La maison existante est une "toulousaine" construite en briques et galets/briques.
Le projet de surélévation est réalisé en ossature bois avec couverture et bardage en zinc anthracite.
L´architecture contemporaine mais sobre et simple de la surélévation viens "coiffer" les murs existants tout en les mettant en valeur par le contraste créé.
5

