BUREAUX & LABO NATSUKO
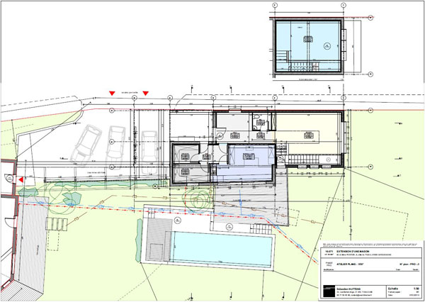
AUTRES Giroussens (Tarn-81) 2017 Maître d´ouvrage: NatsukoConstruction d´une piscine et d´un atelier comprenant bureau et laboratoire de cosmétiques pour la savonnerie artisanale Natsukoà Giroussens (81).
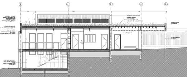
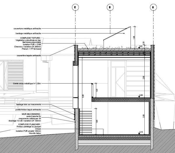
L´atelier est implanté le long de la rue et protège la piscine des regards. Le laboratoire et les bureaux sont implantés à l´étage pour profiter de la vue dégagée sur les pyrénées tandis que le niveau inférieur est dédié au stockage avec un accès depuis la partie basse du terrain. UN petit espace "vitrine" est créé sur la rue.
Pour correspondre à l´image de l´entreprise Natsuko et de ses valaurs, le bâtiments est conçu avec des matériaux sains, renouvelables et durables. L´atelier est essentiellement réalisé en ossature et bardage bois, avec isolation laine de bois, doublage en plaque de gypse plutot que placo, peintures sans COV... La toiture est végétalisée et est équipée de panneaux solaires...
Une coursive relie le nouveau batiment à l´entrée de la maison existante. En plus d´abriter le cheminement des propriétaires entre leur maison et leur lieu de travail, cette coursive assure l´insertion de la nouvelle construction et du bâti existant. De cette manière, l´ensemble forme un tout.
Réalisée dans une deuxieme phase de travaux. une extension de la maison sur le côté Est complètera le projet qui est ainsi l´occasion de requalifier complétement l´habitation existante qui est une maison de "type constructeur" des plus basique.
L´horizontalité est volontairement accentuée pour affirmer le caractère contemporain du projet.

