EXTENSION MAISON & PISCINE
HABITAT Giroussens - Tarn (81) 2017 Maître d´ouvrage: privéExtension d´une maison et construction d´une piscine à Giroussens.
Ce projet vient compléter la création du laboratoire de cosmétique de la marque Natsuko.
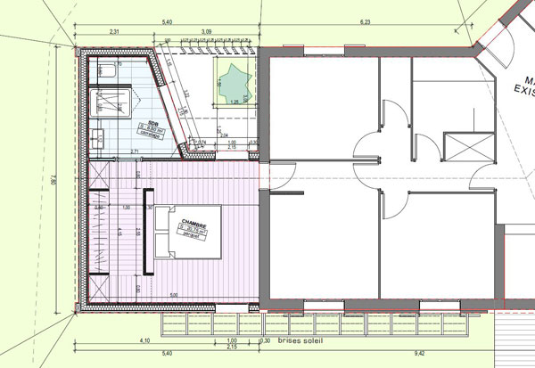
La piscine et l´extension de la maison sur le côté Est permettent de revaloriser complètement l´habitation existante. La maison initiale, de type "maison constructeur extremement basique" est completement transformée et "englobée" par le projet qui redefinit ainsi un ensemble d´allure contemporaine parfaitement cohérent plutot que de construire des éléments isolés et indépendants disséminés sur le terrain.
Le projet comprend également la construction d´un atelier. Ce dernier sera implanté le long de la voirie afin de faire écran et rendre l´espace de la piscine plus intime.
La piscine est implantée dans la pente de manière à générer l´effet de "surplomb". La piscine et la partie bureaux/atelier sont reliés par la terrasse/plage qui accentue cet effet blevédère.

