RENOVATION DUPLEX JF2 A ARGELES SUR MER
HABITAT Argeles-Sur-Mer 2025 Maître d´ouvrage: privéRénovatin complète d´un appartement de vacances en duplex située à Argeles-Sur-Mer.
L´existant comprend un sejour cuisine + wc et sdb au rdc et deux chambres à l´étage.
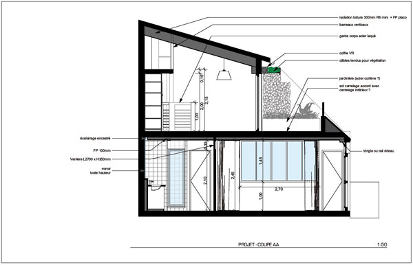
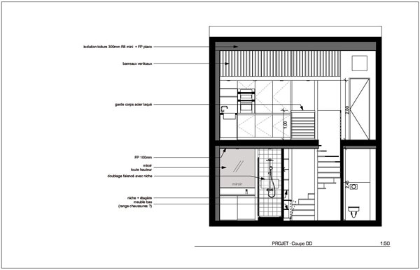
Bien que le second niveau présente une surface plus petite, il bénéficie d´une généreuse terrasse sur le toit de l´immeuble. Le projet consiste donc à "inverser" les niveaux : l´étage est entièrement dégagé et dédié à la cuisine/séjour qui peut ainsi bénéficier pleinement de la terrasse également réaménagée.
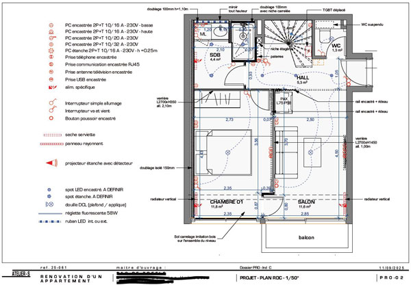
Profitant de la hauteur sous toiture, une mezzanine avec couchage d´appoint est aménagée dans le fond de l´espace. Létage inférieur est réorganisé avec un hall d´entrée, une confortable chambre principale et un salon TV avec balcon pouvant etre utilisé comme deuxième chambre (notamment pour les locations saisonnières) + salle de bain et wc séparé.
Optimisation de la lumière naturelle, transparence, volumes, finitions claires et soigneusement déssinée ... le projet se veut contemporain, sobre, mais chaleureux et apaisant...
Un vrai lieu de vacances.

